Lot 220, Spark Road


Make the newest loved suburb Milldale your next home

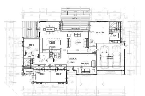
This soon to be built 4 bedrooms, 2 bathrooms home will be located centrally but will still offer you the privacy you desire. Milldale is now on the top of everyone’s shopping lists with affordable modern homes in a well thought out subdivision being developed by the same Developers as Millwater. Amenities, brand new schools, community living, easy motorway access are all on offer and with mostly flat sites this is the perfect location to downsize or upsize your next home.


  • Double carpeted garage with internal access
  • 10 Year Master Build Guarantee
  • Open plan kitchen
  • Four bedrooms and living with own bathroom and separate entry potential granny downstairs
  • Kitchen is well-equipped with all premium European brands of cooking appliances and providing extra storing space.
  • All superior appliances in this lovely home can be chosen, for example intercom, music system, central air conditioning and central vacuum, which bring comfort to the buyer.

FEATURES

PriceSales by Neg.

Land area523sqm

Building area209sqm

Bedroom4

Contact us today!